Ovaj sajt koristi kola?i?e. Da bi ste nastavili sa koriš?enjem sajta, morate ih prihvatiti. Pro?itajte više o tome cookie terms.

Vrnjacka Banja-Raj u izgradnji 1650e/m2 pdv se ne placa

Datum objave Nov 09, 2025 | Pregledi: 278 | Broj: #1055
Tip oglasa:   Ponuda
Cena:   37,801
Telefon:   063477189
Grad:   Vrnjacka Banja
Površina:   23 m2

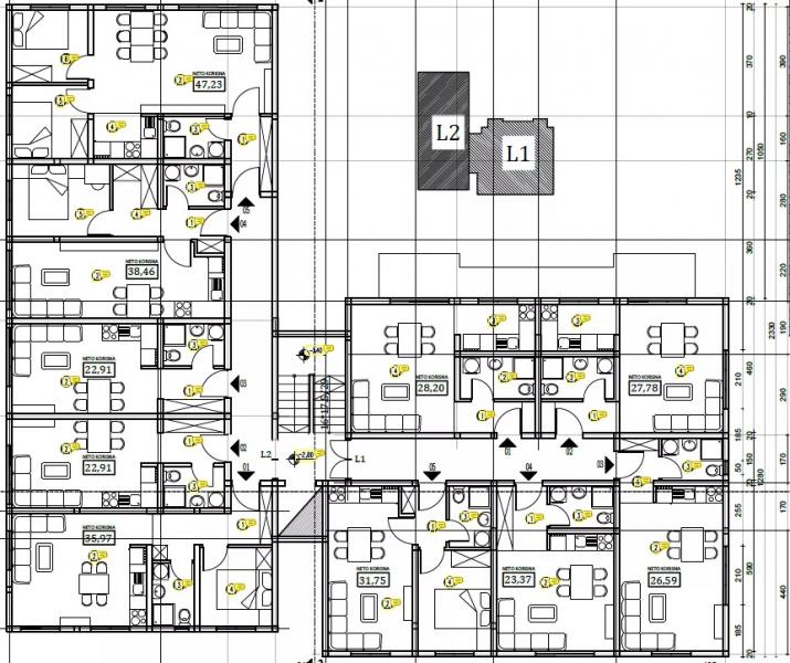
Продајем 9 станова у изградњи, Врњачка Бања, насеље Рај
Цена у тренутној фази 1650е по м2 (рачунамо корисну површину).
Контак 063477189 може позив, смс, вацап, вибер и 0695048087.
3Д слике станова су информативног карактера, гарсоњере ће имати француску терасу, а остали већи станови класичну терасу.
-у ЛАМЕЛИ 1 на првом спрату СТАН број 6, који се састоји од ходника, дневне собе са кухињом и трпезаријом, купатила, собе и терасе укупне нето површине 36.38 м2, а корисне површине 35.29 м2,
-у ЛАМЕЛИ 1 на првом спрату СТАН број 8, који се састоји од ходника, дневне собе са кухињом и трпезаријом, купатила, укупне нето површине 27.41 м2, а корисне површине 26.59 м2,
-у ЛАМЕЛИ 1 на другом спрату СТАН број 12, који се састоји од ходника, дневне собе са кухињом и трпезаријом, купатила, собе и терасе, укупне нето површине35.82м2, а корисне површине 34.75 м2,
-у ЛАМЕЛИ 2 у приземљу СТАН број 4, који се састоји од ходника, дневне собе са кухињом и трпезаријом, купатила, гардеробе и собе, укупне нето површине 39.65м2, а корисне површине 38.46м2, уз овај стан се добија око 10м2 дворишта, гратис.
-у ЛАМЕЛИ 2 на првом спрату СТАН број 9, који се састоји од ходника, дневне собе са кухињом и трпезаријом, купатила, собе и терасе, укупне нето површине 39.54м2, а корисне површине 38.35м2,
-у ЛАМЕЛИ 2 на другом спрату СТАН број 15, који се састоји од ходника, дневне собе са трпезаријом, купатила, кухиња, две собе и терасом, укупне нето површине 48.95м2, а корисне површине 47.48 м2,
-у ЛАМЕЛИ 2 на трећем спрату СТАН број 17, који се састоји од ходника, дневне собе са кухињом и трпезаријом и купатила, укупне нето површине 23.62 м2, а корисне површине 22.91 м2,
-у ЛАМЕЛИ 2 на трећем спрату СТАН број 18, који се састоји од ходника, дневне собе са кухињом и трпезаријом и купатила, укупне нето површине 23.62 м2, а корисне површине 22.91 м2 и
-у ЛАМЕЛИ 2 на трећем спрату СТАН број 20, који се састоји од ходника,дневне собе са трпезаријом, купатила, кухиња, две собе и терасом, укупне нето површине 48.95 м2, а корисне површине 47.48 м2 и
- Такође, продајем 4 паркинг места, цена 5000е, по месту.

Kontakt Info
Ime: snezaoglasi
Još oglasa ovog korisnika
Email oglasivača

Unesite tekst prikazan na slici u polje ispod.
Mogući znakovi su mala slova od a do h
i brojevi od 1 do 9.




 

 

Slični oglasi